Donnez vie à votre espace

Visualisez votre futur local

Acheter vos locaux professionnels sur plan peut parfois rendre la projection difficile. Pour vous accompagner concrètement dans cette étape, nous avons fait appel au cabinet d’architecture d’intérieur Celeste afin de concevoir des plans d’aménagement en perspective sur une sélection de lots actuellement à la commercialisation.

Ces propositions illustrent le potentiel réel des volumes, les possibilités d’organisation et les différentes configurations adaptées à votre activité. Bureaux, showroom, espace de stockage ou atelier : découvrez comment votre futur local peut prendre forme.

Projetez-vous, inspirez-vous et imaginez votre activité dans un espace pensé avec exigence et cohérence.

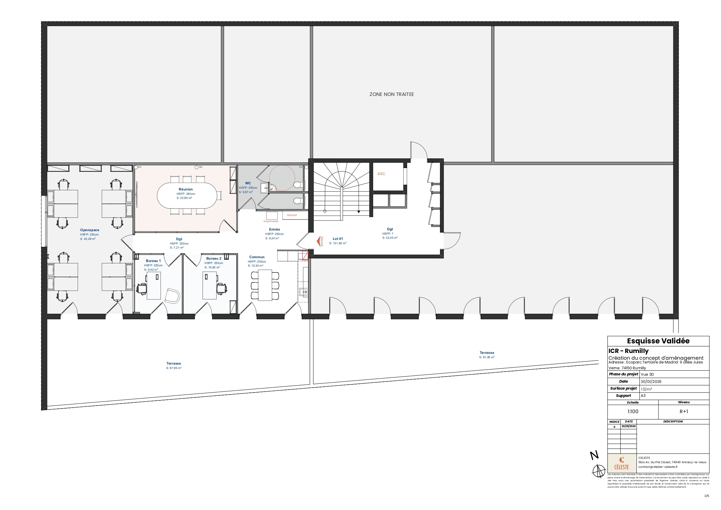
Aménagement d’un espace professionnel pensé pour des bureaux à Rumilly

Situé au sein de l’Ecoparc à Rumilly, le Lot 01 de 131 m² fait l’objet d’une proposition d’aménagement 3D pensée pour un usage en bureaux.

Ce projet met en avant :

– Un espace de travail moderne et lumineux
– Une organisation optimisée (open space, bureaux cloisonnés, espaces collaboratifs)
– Une valorisation de chaque mètre carré
– Une projection concrète pour les futurs acquéreurs

Le lot est actuellement disponible à la vente.

Ce programme vous intéresse?

Aménagement d’un espace professionnel pensé pour des bureaux à Argonay

Ce plateau développe une surface totale de 392 m², répartie en deux lots distincts de 182,6 m² et 210 m².

Le lot de 210 m² peut être divisé selon les besoins, permettant la création de :
→ Un local indépendant de 114 m²
→ Un second local de 96 m²

Cette configuration offre une grande flexibilité, que ce soit pour un utilisateur unique ou pour plusieurs entreprises souhaitant des espaces adaptés et indépendants.  

Les lots sont actuellement disponible à la vente.

Ce programme vous intéresse?

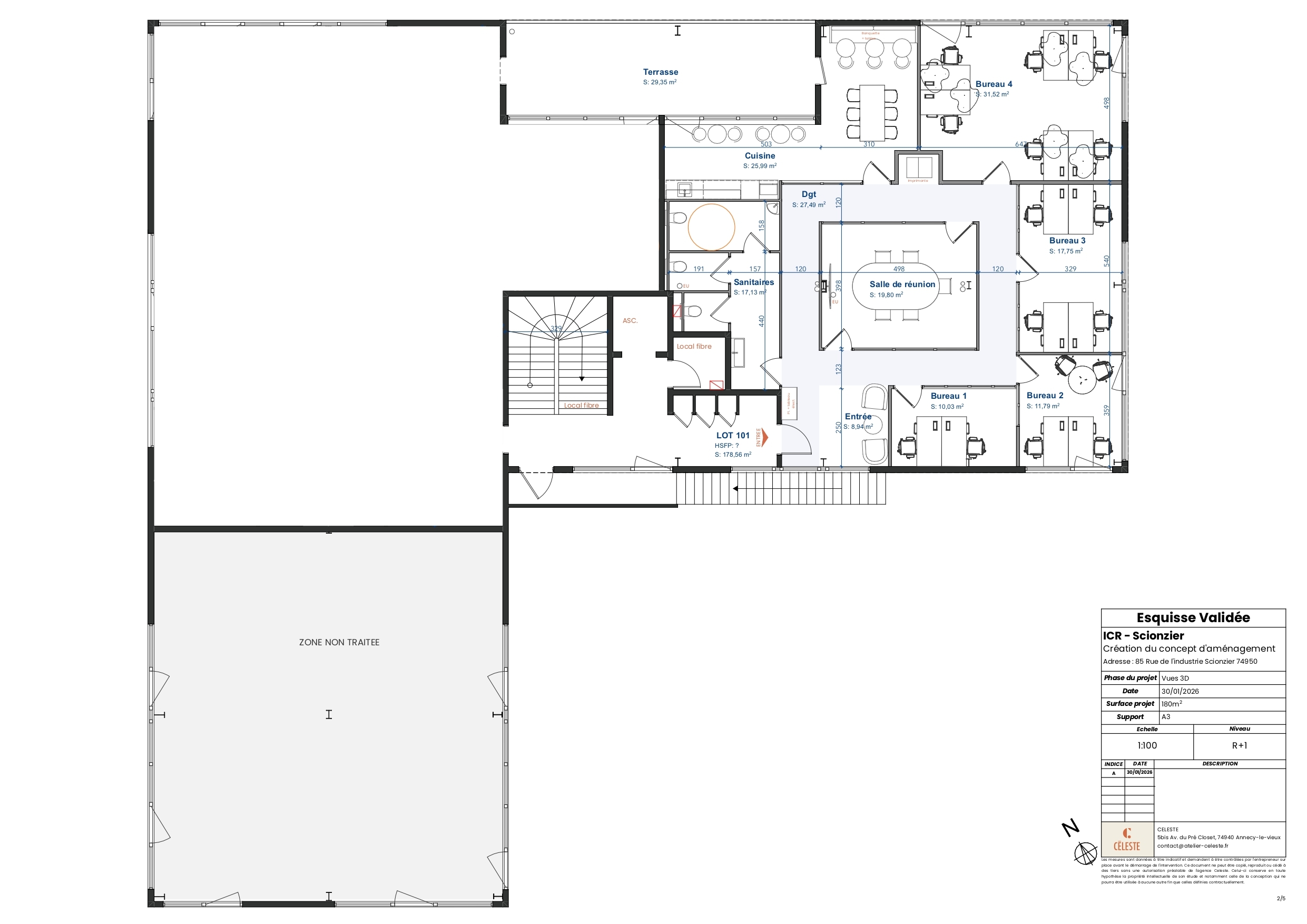
Aménagement d’un espace professionnel pensé pour des bureaux à Scionzier

Situé à Scionzier, ce local professionnel de 176 m² a été entièrement aménagé pour accueillir des bureaux modernes et fonctionnels. Il est actuellement proposé à la vente.

→ Espaces optimisés et modulables
→ Environnement de travail confortable et lumineux
→ Aménagement favorisant collaboration et productivité

Ce projet démontre tout le potentiel d’un plateau brut transformé en espace professionnel sur mesure, adapté aux besoins des entreprises d’aujourd’hui.             

Le lot est actuellement disponible à la vente.

Ce programme vous intéresse?